https://www.avanta.cz/domy/rodinne-domy/typove-domy/286-rd-170-k#sigFreeIddbedf94d13
Tento dům je řešen jako kombinace rámové a skeletové dřevostavby. Nabízí skutečně efektivní využití vnitřního prostoru a to ve dvou plnohodnotných patrech, při stejné výšce hřebene, jako mají domy se sedlovou střechou. Rohové prosklení všech pokojů v patře dotváří nádherný dojem z interiéru i architekturu celého objektu. Navíc je typový dům jvelmi tvárný - můžeme si pohrát s dispozicí, garážovým stáním nebo pergolou či přístřeškem pod terasou. Jak jen budete chtít!
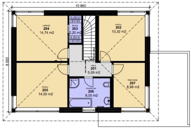
Základní parametry
| Užitná plocha: | 139.00 |
| Zastavěná plocha: | 86.00 |
| Výška hřebene: | 7.00 |
| Tepelná ztráta: | |
| Dispozice: | 6+KK |